Y45H杠杆式减压阀
- 销售:
- 销售:
- 传真:
详情介绍
- 产品介绍
- 服务承诺
- 订货流程
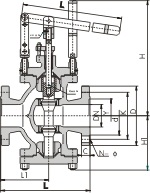
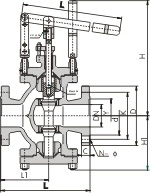
Y45H杠杆式减压阀主要由阀体、阀座、阀瓣等零件组成,采用双阀座、双锥体阀瓣的结构。采用压力平衡式阀瓣、升降调节。其调节机构采用扛杆式,可配用DKJ型或其它型角行程电动执行器,实现遥控和自动控制。
Y45H杠杆式减压阀的减压比用到0.6较为合适。
Y45H杠杆式减压阀主要用于蒸汽管路,调节压力。广泛应用在热电联产、轻纺、印染、石化、制糖等行业。
主要技术参数
公称压力(Mpa) | 1.6 | 2.5 | 4.0 | 6.4 | 10.0 | 16.0 |
壳体试验压力(Mpa) | 2.4 | 3.75 | 6.0 | 9.6 | 15.0 | 24 |
密封试验压力(Mpa) | 1.76 | 2.75 | 4.4 | 7.04 | 11.0 | 17.6 |
高进口压力(Mpa) | 1.6 | 2.5 | 4.0 | 6.4 | 10.0 | 16.0 |
出口压力范围(Mpa) | 佳减压比0.6 | |||||
渗漏量 | 0.5%QMax | |||||
温量-压力等级 | ANSI B16.34 | |||||

主要零件材料
零件名称 | 零件材料 |
阀体 阀盖 底盖 | WCB |
阀座 | 304 |
阀瓣 | 2Cr13 |
阀杆 | 2Cr13 |
垫片 | 柔性石墨/1Cr18Ni9 |
导向套 | 2Cr13 |
填料 | 柔性石墨 |
螺栓 | 35CrMoA |
螺母 | 45 |
流量系数Cv
DN | 50 | 65 | 80 | 100 | 125 | 150 | 200 | 250 | 300 | 350 | 400 | 500 |
Cv | 20 | 25 | 50 | 60 | 70 | 110 | 150 | 230 | 420 | 540 | 710 | 1020 |

主要外形尺寸
PN1.6-4.0MPa
公称通径DN | 外 形 尺 寸 | ||||
L | L1 | H | Hl | l | |
50 | 300 | 150 | 520 | 190 | 565 |
65 | 340 | 170 | 540 | 205 | 650 |
80 | 380 | 190 | 550 | 215 | 650 |
100 | 400 | 215 | 580 | 240 | 800 |
125 | 430 | 225 | 620 | 275 | 800 |
150 | 450 | 230 | 650 | 320 | 800 |
200 | 500 | 260 | 790 | 340 | 800 |
250 | 550 | 285 | 850 | 370 | 800 |
300 | 750 | 395 | 940 | 460 | 900 |
350 | 850 | 445 | 990 | 530 | 900 |
400 | 950 | 550 | 1120 | 660 | 1000 |
500 | 1130 | 680 | 1660 | 800 | 1000 |
PN6.4-16.0MPa
公称通径DN | 外 形 尺 寸 | ||||
L | L1 | H | Hl | l | |
50 | 300 | 150 | 520 | 200 | 565 |
65 | 340 | 170 | 540 | 215 | 650 |
80 | 380 | 190 | 550 | 225 | 650 |
100 | 400 | 215 | 580 | 250 | 800 |
125 | 430 | 225 | 620 | 285 | 800 |
150 | 450 | 230 | 650 | 330 | 800 |
200 | 500 | 260 | 790 | 355 | 800 |
250 | 550 | 285 | 850 | 390 | 800 |
300 | 750 | 395 | 940 | 480 | 900 |
350 | 850 | 445 | 990 | 550 | 900 |
400 | 950 | 550 | 1120 | 700 | 1000 |
500 | 1130 | 680 | 1660 | 820 | 1000 |
良好的品质、优良的服务 上海宇航视觉艺术咨询有限公司为你创造更多价值!
“上海宇航视觉艺术咨询有限公司”的期望,不断提升服务质量,精益求精,“真诚的服务”是“上海宇航视觉艺术咨询有限公司”永恒的主题。“上海宇航视觉艺术咨询有限公司”严格按照IS09001-2000 质量体系认证要求,质量严格把关, 责任到人,确保生产、销售、服务的健康运行。加强与用户沟通,竭诚为广大客户提供优良产品,至善至美服务。特此我厂做出以下承诺:
产品标准:
产品严格按照中国GB、HG 标准和美国API等标准设计、制造、验收。密封面硬度达到国家规定要求,宽度超过国家标准。
售前服务:
产品介绍,技术交流,非标产品设计,疑难解答。
售中服务:
守信合同,保证及时供货,随时保持与客户联系。 对特殊或复制的产品,我厂安排技术人员对用户进行产品使用、故障排除
售后服务:
1、“上海宇航视觉艺术咨询有限公司”牌产品品质期为自出厂起12个月,实行“三包”服务(包退、包换、保修)。
2、产品在使用中我厂定期组织技术、质检人员进行访问,征询用户对产品质量、 使用状况、改进意见等方面的反馈, 以便进一步提高产品质量。
3、对用户投诉质量问题,快速作出反应,售后服务人员在24-36小时(省外48小时)赶赴现场。
4、对售后服务,要求用户填写服务后的质量反馈信息表,并作出鉴定意见,以便提高上海宇航视觉艺术咨询有限公司的服务质量。
1、客户如对产品有特殊要求,须在订货合同中提供以下说明:
a、结构长度;
b、连接形式;
c、公称直径、全通径、缩径、管道尺寸;
d、运行介质及温度、压力范围;
e、试验、检验标准及其他要求
2、本厂可根据客户特定要求配置各类驱动装置。
3、如由客户提供确定的阀门类型和型号时,客户应正确说明其型号的含义和要求,在供需双方理解一致的条件下签订合同。
4、期货、订货的客户请先来电函详细告诉所需的阀门型号、规格、数量以及交货时间、地点,并按总的30%预定金或全额货款及时汇入我厂帐户,其余货款待发货前汇入,以便及时安排发货。
订单流程:
1、客户采购清单传真至,或来电咨询
2、收到客户采购清单,为客户提供阀门型号选型与报价(价格清单)。
3、具体商定:交货期、特殊要求等事宜。
订货须知:
1、客户如对产品有特殊要求,须在订货合同中提供以下说明:
|
|||||
|
|||||
2、本厂可根据客户特定要求配置各类驱动装置。
|
|||||
3、如由客户提供确定的阀门类型和型号时,客户应正确说明其型号的含义和要求,在供需双方理解一致的条件下签订合同。
|
|||||
4、期货、订货的客户请先来电函详细告诉所需的阀门型号、规格、数量以及交货时间、地点,并按总的30%预定金或全额货款及时汇入我厂账户, 其余货款待发货前汇入,以便及时安排发货。
|
售中服务:
守信合同,保证及时供货,随时保持与客户联系。
对特殊或复制的产品,我厂安排技术人员对用户进行产品使用、故障排除
售后服务:
1、“上海宇航视觉艺术咨询有限公司”产品品质期为自出厂起12个月,实行“三包”服务(包退、包换、保修)。
2、产品在使用中我厂定期组织技术、质检人员进行访问,征询用户对产品质量、使用状况、改进意见等方面的反馈,
以便进一步提高产品质量。
3、对用户投诉质量问题,快速作出反应,售后服务人员在24-36小时(省外48小时)赶赴现场。
4、对售后服务,要求用户填写服务后的质量反馈信息表,并作出鉴定意见,以便提高“上海宇航视觉艺术咨询有限公司”的服务质量。
声明 |
|