CS15/45H自由半浮球式疏水阀
- 销售:
- 销售:
- 传真:
详情介绍
- 产品介绍
- 服务承诺
- 订货流程
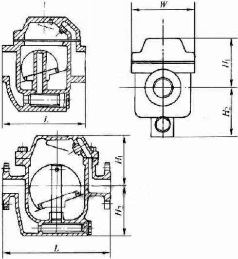
CS15H-16C、CS45H-16C 型自由半浮球式蒸汽疏水阀:内螺纹连接(CS15H-16C)、法兰连接(CS45H-16C),半浮球式结构形式,阀座密封面材料为 Cr13 系不锈钢,公称压力 PN16,阀体材料为碳钢的蒸汽疏水阀。自由半浮球式蒸汽疏水阀是机械型疏水阀中工作性能可靠的疏水阀之一。它的内部结构只有一个半浮球式的球桶为活动部件,开口朝下,半浮球式的球桶外圆经过精细研磨,整个球面都可为密封面。使用寿命很长,能抗水锤,没有易损件,无故障,经久耐用,无蒸汽泄漏,节能效果好。自由半浮球式蒸汽疏水阀用于蒸汽加热设备,蒸汽管网凝结水回收系统。
|
|
CS15H自由半浮球式蒸汽疏水阀 | CS45H自由半浮球式蒸汽疏水阀 |
工作原理
自由半浮球式蒸汽疏水阀只有一个半浮球式的球桶为活动部件,开口朝下,球桶即是启闭件,又是密封件。当装置刚启动时,管道内的空气和低温凝结水经过发射管进入疏水阀内,阀内的双金属片排空元件把球桶弹开,阀门开启,空气和低温凝结水迅速排出。当蒸汽进入球桶内,球桶产生向上浮力,同时阀内的温度升高,双金属片排空元件收缩,球捅漂向阀口,阀门关闭。当球桶内的蒸汽变成凝结水,球桶失去浮力往下沉,阀门开启,凝结水迅速排出。当蒸汽再进入球桶之内,阀门再关闭,间断和连续工作。由于阀座处于水封隔离,水汽分开,工作时无蒸汽泄漏。
主要性能参数
型号 | PN | 工作压力/MPa | 适用温度/℃ | 适用介质 |
CS15H-16C | 16 | 1.6 | ≤350 | 蒸汽、水 |
CS45H-16C | 16 | 1.6 | ≤350 | 蒸汽、水 |
主要零件材料
型号 | 阀体材料 |
CS15H-16C | WCB |
CS45H-16C | WCB |

主要外形尺寸
型号 | DN | L | H1 | H2 | W |
CS15H-16C | 15 | 170 | 75 | 93 | 120 |
20 | 170 | 75 | 93 | 120 | |
25 | 170 | 75 | 93 | 120 | |
32 | 210 | 95 | 155 | 160 | |
40 | 210 | 95 | 155 | 160 | |
50 | 210 | 95 | 155 | 160 | |
CS45H-16C | 15 | 230 | 75 | 93 | 120 |
20 | 230 | 75 | 93 | 120 | |
25 | 230 | 75 | 93 | 120 | |
32 | 270 | 95 | 155 | 160 | |
40 | 270 | 95 | 155 | 160 | |
50 | 270 | 95 | 155 | 160 | |
CS45H-16(AA) | 65 | 380 | 177 | 172 | 290 |
80 | 380 | 177 | 172 | 290 | |
100 | 380 | 177 | 172 | 290 |
良好的品质、优良的服务 上海宇航视觉艺术咨询有限公司为你创造更多价值!
“上海宇航视觉艺术咨询有限公司”的期望,不断提升服务质量,精益求精,“真诚的服务”是“上海宇航视觉艺术咨询有限公司”永恒的主题。“上海宇航视觉艺术咨询有限公司”严格按照IS09001-2000 质量体系认证要求,质量严格把关, 责任到人,确保生产、销售、服务的健康运行。加强与用户沟通,竭诚为广大客户提供优良产品,至善至美服务。特此我厂做出以下承诺:
产品标准:
产品严格按照中国GB、HG 标准和美国API等标准设计、制造、验收。密封面硬度达到国家规定要求,宽度超过国家标准。
售前服务:
产品介绍,技术交流,非标产品设计,疑难解答。
售中服务:
守信合同,保证及时供货,随时保持与客户联系。 对特殊或复制的产品,我厂安排技术人员对用户进行产品使用、故障排除
售后服务:
1、“上海宇航视觉艺术咨询有限公司”牌产品品质期为自出厂起12个月,实行“三包”服务(包退、包换、保修)。
2、产品在使用中我厂定期组织技术、质检人员进行访问,征询用户对产品质量、 使用状况、改进意见等方面的反馈, 以便进一步提高产品质量。
3、对用户投诉质量问题,快速作出反应,售后服务人员在24-36小时(省外48小时)赶赴现场。
4、对售后服务,要求用户填写服务后的质量反馈信息表,并作出鉴定意见,以便提高上海宇航视觉艺术咨询有限公司的服务质量。
1、客户如对产品有特殊要求,须在订货合同中提供以下说明:
a、结构长度;
b、连接形式;
c、公称直径、全通径、缩径、管道尺寸;
d、运行介质及温度、压力范围;
e、试验、检验标准及其他要求
2、本厂可根据客户特定要求配置各类驱动装置。
3、如由客户提供确定的阀门类型和型号时,客户应正确说明其型号的含义和要求,在供需双方理解一致的条件下签订合同。
4、期货、订货的客户请先来电函详细告诉所需的阀门型号、规格、数量以及交货时间、地点,并按总的30%预定金或全额货款及时汇入我厂帐户,其余货款待发货前汇入,以便及时安排发货。
订单流程:
1、客户采购清单传真至,或来电咨询
2、收到客户采购清单,为客户提供阀门型号选型与报价(价格清单)。
3、具体商定:交货期、特殊要求等事宜。
订货须知:
1、客户如对产品有特殊要求,须在订货合同中提供以下说明:
|
|||||
|
|||||
2、本厂可根据客户特定要求配置各类驱动装置。
|
|||||
3、如由客户提供确定的阀门类型和型号时,客户应正确说明其型号的含义和要求,在供需双方理解一致的条件下签订合同。
|
|||||
4、期货、订货的客户请先来电函详细告诉所需的阀门型号、规格、数量以及交货时间、地点,并按总的30%预定金或全额货款及时汇入我厂账户, 其余货款待发货前汇入,以便及时安排发货。
|
售中服务:
守信合同,保证及时供货,随时保持与客户联系。
对特殊或复制的产品,我厂安排技术人员对用户进行产品使用、故障排除
售后服务:
1、“上海宇航视觉艺术咨询有限公司”产品品质期为自出厂起12个月,实行“三包”服务(包退、包换、保修)。
2、产品在使用中我厂定期组织技术、质检人员进行访问,征询用户对产品质量、使用状况、改进意见等方面的反馈,
以便进一步提高产品质量。
3、对用户投诉质量问题,快速作出反应,售后服务人员在24-36小时(省外48小时)赶赴现场。
4、对售后服务,要求用户填写服务后的质量反馈信息表,并作出鉴定意见,以便提高“上海宇航视觉艺术咨询有限公司”的服务质量。
声明 |
|
