自力式差(微)压调节阀-ZZC(V)
- 销售:
- 销售:
- 传真:
详情介绍
- 产品介绍
- 服务承诺
- 订货流程
ZZC(V)自力式差(微)压调节阀是一种不需要外加能源的执行器产品。可用于公称压力PN01,PN10。差(微)压均可分段调节。从50mm.W.C至0.1MPa。其用途十分广泛,可用于工业燃烧炉系统。控制两种物料,如煤气、空气流量配比,以达理想燃烧。用于氢冷发电组密封油系统,控制密封油与氢气间压力差,以确保可靠密封。当差压阀的低压端通大气即为微压阀(差压阀负压,端压,力为零)。
差(微)压调节阀有B型和K型两种。B型阀阀芯初始位置常开,差(微)压增大时闭合。K型阀阀芯初始位置常闭,差(微)压增大时开启。
特点
无需停止生产即进行设定值的调整;
无填料,阀杆上、下活动时不存在磨擦,上密封可靠;
执行机构敏感元件灵敏,微小的压力变化会被感测出来;
阀体为四通形式,因而K、B型可通用一种阀体。
应用
A.氢冷发电机组密封油系统;
B.风机加热系统循环风量控制;
C.两种气体流量的配比控制;
D.泵旁路调节
型号编制

主要技术参数
公称通径DN(mm) | 20 | 25 | 32 | 40 | 50 | 65 | 80 | 100 | |
额定流量 | ZZCP / ZZVP | 8 | 11 | 20 | 32 | 50 | 80 | 100 | 160 |
ZZCN | 53 | 83 | |||||||
额定行程(mm) | 6 | 8 | 10 | 15 | 20 | ||||
公称压力PN(MPa) | 0.10 1.0 | ||||||||
差压调节范围(kPa) | 0.5~5.5 5~10 9~14 13~19 18~24 22~28 26~33 31~38 | ||||||||
介质温度(℃) | ≤80 | ||||||||
调节精度(%) | ≤10 | ||||||||
允许泄漏 | ZZCP / ZZVP | 10-4×阀额定容量(Ⅳ级) | |||||||
ZZCN | 5×10-3×阀额定容量(Ⅱ级) | ||||||||
注:1. ZZCP/ZZVP公称压力为0.1MPa,ZZCN为1.0MPa
2. ZZCN差压调节范围为36~44,42~51,49~58,56~66,64~78,76~90,88~100KPa

主要零件材料
序号 | 名称 | 材料 | 序号 | 名称 | 材料 |
1 | 封盖 | 2Cr13 | 1 | 上阀座 | 1Cr18Ni9Ti |
2 | 弹簧座 | 45 | 2 | 下阀座 | 1Cr18Ni9Ti |
3 | 弹簧 | 60Si2Mn | 3 | 调节盘 | 2Cr13 |
4 | 托盘 | 1Cr18Ni9Ti | 4 | 弹簧座 | 45 |
5 | 膜片 | ding腈橡胶 | 5 | 波纹管 | 1Cr18Ni9Ti |
6 | 小膜片 | 耐油橡胶 | 6 | 执行机构外腔 | Q235 |
7 | 阀芯 | PTFE | 7 | 推杆 | 2Cr13 |
8 | 阀座 | 1Cr18Ni9Ti | 8 | 阀杆 | 1Cr18Ni9Ti |
9 | 阀体 | ZG230-450 | 9 | 阀芯 | 1Cr18Ni9Ti |
10 | 阀体 | ZG230-450 |

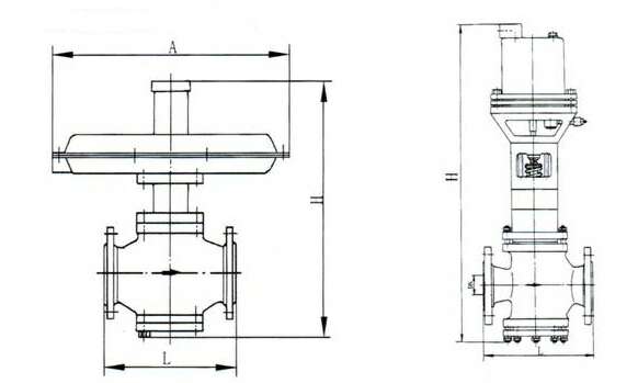
主要外形尺寸
DN | 20 | 25 | 32 | 40 | 50 | 65 | 80 | 100 | |
A | 308 | 394 | 308 | 394 | 308 | 394 | 394 | 394 | |
H | ZZCP / ZZVP | 376 | 465 | 365 | 445 | 445 | 490 | 490 | 510 |
ZZCN | 536 | 536 | |||||||
L | ZZCP / ZZVP | 150 | 160 | 180 | 200 | 290 | 290 | 310 | 350 |
ZZCN | 222 | 222 | |||||||
重量G(Kg) | 12 | 13 | 15 | 17 | 20 | 38 | 38 | 43 | |
导压管螺纹接头 | M16×1.5 | ||||||||
良好的品质、优良的服务 上海宇航视觉艺术咨询有限公司为你创造更多价值!
“上海宇航视觉艺术咨询有限公司”的期望,不断提升服务质量,精益求精,“真诚的服务”是“上海宇航视觉艺术咨询有限公司”永恒的主题。“上海宇航视觉艺术咨询有限公司”严格按照IS09001-2000 质量体系认证要求,质量严格把关, 责任到人,确保生产、销售、服务的健康运行。加强与用户沟通,竭诚为广大客户提供优良产品,至善至美服务。特此我厂做出以下承诺:
产品标准:
产品严格按照中国GB、HG 标准和美国API等标准设计、制造、验收。密封面硬度达到国家规定要求,宽度超过国家标准。
售前服务:
产品介绍,技术交流,非标产品设计,疑难解答。
售中服务:
守信合同,保证及时供货,随时保持与客户联系。 对特殊或复制的产品,我厂安排技术人员对用户进行产品使用、故障排除
售后服务:
1、“上海宇航视觉艺术咨询有限公司”牌产品品质期为自出厂起12个月,实行“三包”服务(包退、包换、保修)。
2、产品在使用中我厂定期组织技术、质检人员进行访问,征询用户对产品质量、 使用状况、改进意见等方面的反馈, 以便进一步提高产品质量。
3、对用户投诉质量问题,快速作出反应,售后服务人员在24-36小时(省外48小时)赶赴现场。
4、对售后服务,要求用户填写服务后的质量反馈信息表,并作出鉴定意见,以便提高上海宇航视觉艺术咨询有限公司的服务质量。
1、客户如对产品有特殊要求,须在订货合同中提供以下说明:
a、结构长度;
b、连接形式;
c、公称直径、全通径、缩径、管道尺寸;
d、运行介质及温度、压力范围;
e、试验、检验标准及其他要求
2、本厂可根据客户特定要求配置各类驱动装置。
3、如由客户提供确定的阀门类型和型号时,客户应正确说明其型号的含义和要求,在供需双方理解一致的条件下签订合同。
4、期货、订货的客户请先来电函详细告诉所需的阀门型号、规格、数量以及交货时间、地点,并按总的30%预定金或全额货款及时汇入我厂帐户,其余货款待发货前汇入,以便及时安排发货。
订单流程:
1、客户采购清单传真至,或来电咨询
2、收到客户采购清单,为客户提供阀门型号选型与报价(价格清单)。
3、具体商定:交货期、特殊要求等事宜。
订货须知:
1、客户如对产品有特殊要求,须在订货合同中提供以下说明:
|
|||||
|
|||||
2、本厂可根据客户特定要求配置各类驱动装置。
|
|||||
3、如由客户提供确定的阀门类型和型号时,客户应正确说明其型号的含义和要求,在供需双方理解一致的条件下签订合同。
|
|||||
4、期货、订货的客户请先来电函详细告诉所需的阀门型号、规格、数量以及交货时间、地点,并按总的30%预定金或全额货款及时汇入我厂账户, 其余货款待发货前汇入,以便及时安排发货。
|
售中服务:
守信合同,保证及时供货,随时保持与客户联系。
对特殊或复制的产品,我厂安排技术人员对用户进行产品使用、故障排除
售后服务:
1、“上海宇航视觉艺术咨询有限公司”产品品质期为自出厂起12个月,实行“三包”服务(包退、包换、保修)。
2、产品在使用中我厂定期组织技术、质检人员进行访问,征询用户对产品质量、使用状况、改进意见等方面的反馈,
以便进一步提高产品质量。
3、对用户投诉质量问题,快速作出反应,售后服务人员在24-36小时(省外48小时)赶赴现场。
4、对售后服务,要求用户填写服务后的质量反馈信息表,并作出鉴定意见,以便提高“上海宇航视觉艺术咨询有限公司”的服务质量。
声明 |
|